Miam cookie
Notre site web utilise des cookies.

Les cookies sont des petites notes stockées dans votre navigateur afin de vous reconnaître lors de vos futurs connexions. Le suivi de vos connexions reste anonyme et nous permet de mieux comprendre vos besoins individuels. Les cookies sont déposés et lus par Google Analytics.

Agencement & Décoration d'Intérieur
Ouvrir le menu

Une Maison en Provence

  1. Accueil
  2. Portfolio
  3. Une Maison en Provence

AMENAGEMENT ET DECORATION D’UNE VILLA PROVENCALE de 150 m2

Maxime et Collyn ont acheté une résidence secondaire à Aix en Provence, pour profiter des weekends avec leurs enfants et se projettent à 15 ans, pour leur future retraite.
Le couple voulait que l’espace au rez-de-chaussée soit entièrement redistribué, pour créer un espace de vie faisant à la fois office de cuisine, salon, salle à manger, avec accès à une grande terrasse pour mieux profiter du jardin, puis un bureau donnant accès sur l’extérieur.

Exterieur maison en provence
Exterieur maison en provence

EXTÉRIEUR avant travaux

Intérieur AVANT TRAVAUX

La photo avant travaux illustrent les changements à opérer, pour métamorphoser la villa dans un style contemporain chaleureux.

Intérieur maison en provence

Planche ambiance pour l'espace de vie

Planche maison en provence
Planche maison en provence

Planche
couleurs et materiaux

Collyn adore les tons ocres et orangés. Nous les avons intégrés dans la décoration pour DYNAMISER l’ambiance (tapis, coussins, objets déco). L’association des tons intemporels et toniques contribuent à créer une atmosphère contemporaine, tout en gardant un caractère accueillant et tonique.

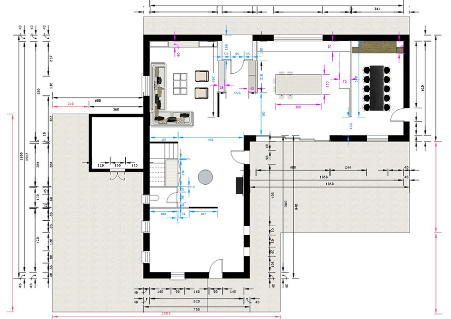
Pour optimiser le POTENTIEL de la maison tout en conservant le cachet provençal de la structure, les matériaux naturels (bois, céramique, pierre ...) ont été privilégiés. Ils s’associent harmonieusement avec les grandes baies vitrées coulissantes en aluminium noir, communiquant avec la terrasse extérieure. Dans ce grand OPEN SPACE, le cloisonnement a été modifié de façon à délimiter les différents UNIVERS (cuisine, salon, bureau, entrée et salle à manger), pour rendre la CIRCULATION FLUIDE et apporter une lumière transversale sur l’ensemble du rez-de-chaussée.

Vue plan aménagé

Simulations en rendu réaliste

Simulation en rendu réaliste maison en provence

La terrasse aménagée

Simulation en rendu réaliste maison en provence

L'espace lecture

Simulation en rendu réaliste maison en provence

Le salon

Simulation en rendu réaliste maison en provence
Simulation en rendu réaliste maison en provence

L'espace lecture

Simulation en rendu réaliste maison en provence

La salle à manger