Miam cookie
Notre site web utilise des cookies.

Les cookies sont des petites notes stockées dans votre navigateur afin de vous reconnaître lors de vos futurs connexions. Le suivi de vos connexions reste anonyme et nous permet de mieux comprendre vos besoins individuels. Les cookies sont déposés et lus par Google Analytics.

Agencement & Décoration d'Intérieur
Ouvrir le menu

Bureau pour un Écrivain

  1. Accueil
  2. Portfolio
  3. Bureau pour un Écrivain

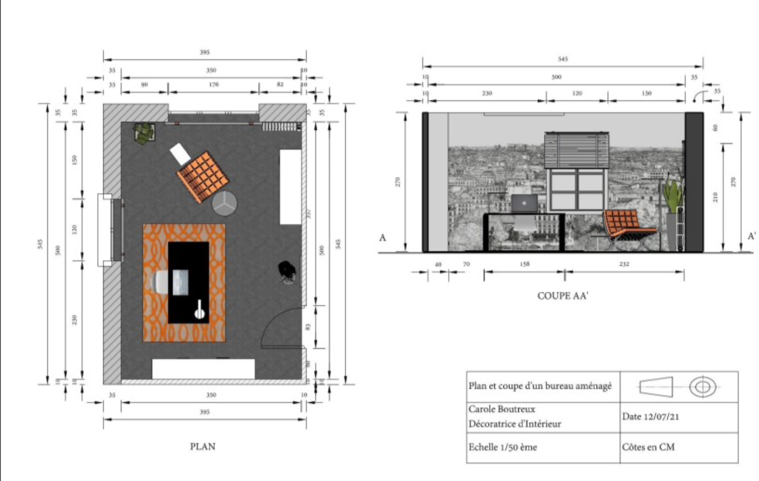
AGENCEMENT ET DECORATION D’UN BUREAU D’ECRIVAIN

Pierre est écrivain. Il a investi dans un loft à Paris, dans lequel il y a de nombreux travaux à prévoir. Une des pièces (17,5 m2) sera consacrée à son bureau.

Il a besoin de rangement pour ses livres et ses dossiers. Comme il y passera beaucoup de temps, il aimerait que cet espace soit LUMINEUX, CONVIVIAL ET DYNAMIQUE. Il a choisi un bureau noir, une étagère et une chaise blanche et a aussi repéré un carrelage gris foncé, facile à entretenir, mais laisse carte blanche pour définir la couleur des murs et agencer la pièce.

Vue du bureau depuis l'angle

A partir des choix que Pierre avait précédemment validés, nous avons pris le parti d’intégrer des nuances oranges (tapis, fauteuil, posters, couleur aux murs pour RECHAUFFER le carrelage gris et le mobilier blanc et noir), qui pourraient donner une atmosphère trop minimaliste et peu accueillante. Le papier peint panoramique « Montmartre » affirme le style urbain et parisien. Le CONFORT LUMINEUX est assuré grâce aux 2 ouvertures et renforcé aux moments les plus sombres de la journée par un éclairage LED au plafond et des lampes d’appoint.

Vue du bureau depuis l'angle

Projection en 3D

Vue du bureau depuis l'angle
Vue du bureau depuis l'angle

Planche ambiance

Vue du bureau depuis l'angle